扩孔自锁锚固技术
一)钢筋混凝土自锁锚固技术(专利号:ZL200910272493.3 发明专利) —解决粘接锚固等系列问题
1、适用范围:自锁锚固技术是外粘钢板、外包钢板加固工程中由于植筋锚固长度不足或植筋锚固位置所处外界温度过高不宜采用有机结构胶粘接时,用以代替植筋的专有锚固技术。
2、设计依据
《建筑结构荷载规范》(GB5009-2012)
《建筑结构可靠度设计统一标准》(GBJ50068-2001)
《混凝土结构设计规范》(GB50010-2010)
《预应力混凝土用螺纹钢筋》(GB/T20065-2006)
《混凝土结构后锚固技术规程》(JGJ 145-2013)
《混凝土结构加固设计规范》(GB 50367-2013)
《建筑结构加固工程施工质量验收规范》(GB50550-2010)
《岩土与混凝土自锁锚固技术规程》(18-1-8)(送审稿)
3、自锁锚杆应用范例:
预应力深孔锚杆分段锚固示意图(大坝加高)
4、性能参数表
5、技术特点:
1)只有两种破坏模式,不存在锚杆从孔中拔出的情况,可靠性高;
2)由底部扩孔提供锚固力,将拉拔力直接传至结构内部,减小锚固深度,在浅孔内能生成较大的锚固力;
3)安装方便,快速提供锚固力,抗疲劳,孔内灌注无机粘结灌浆料配合使用耐温、温湿、耐老化,孔内灌注有机结构胶时可大幅度提高锚杆安全性能。
6、安装工艺:
7、注意事项
1)基材混凝土强度等级不应低于C20,混凝土基材应坚实,能承担对被连接件的锚固和全部附加荷载,风化混凝土、严重裂损混凝土、不密实混凝土、结构抹灰层、装饰层等,均不得作为锚固基材。
2)钻孔后必选严格清孔,凿除钻孔周围酥松不密实混凝土,保证锚固基底坚硬密实。
3)采用有机结构胶填充杆体与孔壁间隙时,必选保证孔内胶体密实填充,如需焊接则应先完成焊接工作再进行压力灌胶,保证灌胶密实。
4)采用无机灌浆料填充杆体与孔壁间隙时,必选保证孔内填充材料密实,且施工自锁锚杆前应保证基底湿润、清洁,施工完应进行养护。
5)钻孔、扩孔应避免钻头打断原结构受力钢筋。
8、工程案例
河南漯河电力局220KV漯淮线铁塔基础加固
湖北郧阳长江大桥锚杆加固工程
二)岩石自锁锚固技术—解决地下室抗浮锚固等系列问题
1、适用范围
1)适用于岩石强度较高的浅岩基础,在地下室抗浮设计中利用高强精轧螺纹钢筋扩底自锁锚杆代替传统钢筋混凝土抗浮桩。
2)相比与传统钢筋混凝土抗浮桩,精轧螺纹钢筋扩底自锁锚杆具有锚固力大,长度小,施工工期短,工程总体造价低的优点。
2、设计依据
《建筑结构荷载规范》(GB5009-2012)
《建筑结构可靠度设计统一标准》(GBJ50068-2001)
《混凝土结构设计规范》(GB50010-2010)
《预应力混凝土用螺纹钢筋》(GB/T20065-2006)
《混凝土结构后锚固技术规程》(JGJ 145-2013)
《混凝土结构加固设计规范》(GB 50367-2013)
《建筑结构加固工程施工质量验收规范》(GB50550-2010)
《岩土与混凝土自锁锚固技术规程》(18-1-8)(送审稿)
《岩土锚杆(索)技术规程》(CECS 22:2005)
3、岩石自锁锚杆应用范例
1)先做锚杆后浇基础底板
2)先浇筑基础底板后做抗浮锚杆
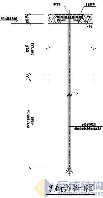
3)细部做法详图
4、锚杆性能参数
1)锚杆性能表
2)填充材料:无机灌浆料(强度不小于C30)。
3)锚杆在岩石中的锚固长度参考表
5、抗浮锚杆施工工艺
1)钻孔及清孔:钻∅110圆直孔至设计深度,终孔时依据岩样确定已进入微风化片岩的深度。直孔钻完后,孔底用扩孔机具扩成倒锥形孔,扩孔孔底预留60mm。钻孔、孔底扩孔完成后,将孔内清理干净。钻孔轴线的偏斜率不应大于锚杆长度的2%。
2)自锁锚杆制作:采用精轧螺纹钢JL40,将钢筋底端车丝,安装扩大头和扩大套筒。
3)自锁锚杆安装:
(1)安装自锁锚杆,用加力套筒加压使锚杆端部的扩胀套筒张开自锁。
(2)用导管从底部灌注ICG-I型无机灌浆料至开挖面或垫层上表面,顶面收缩部分应进行补灌。
(3)待ICG-I型无机灌浆料达到设计强度后,凿除垫层以上超灌部分的灌浆料,注浆后至硬化
前不得随意敲打杆体,也不得在杆体上悬挂重物。
(4)精轧螺纹钢筋PS1080级,fptk=1230Mpa,fpy=900MPa。
6、抗浮锚杆验收标准
1、基本试验
根据《岩石锚杆(索)技术规程》(CECS22-2005)基本试验规定,进行极限抗拔试验,试验数量不应少于3根,基本试验值为2倍特征值。
2、验收试验
根据《岩石锚杆(索)技术规程》(CECS22-2005)基本试验规定,进行验收试验,试验数量不应少于锚杆总数的5%,且不得少于3根,验收试验值为1.5倍特征值。
7、注意事项
1、抗浮锚杆设计时需注意建该建筑物是纯地下室还是主楼下的地下室,若是纯地下室或是主楼层数较少,应单独考虑地下室的整体抗浮,若整体抗浮不满足要求则锚杆深度须加长。
2、若是在已有地下室底板上后做抗浮锚杆,需要在已施工基础底板上打孔,此时应考虑抗浮锚杆的防水做法。
3、进行抗浮锚杆方案设计时必须清楚原设计地勘报告对应的岩石情况、原设计方案中单根锚杆的承载力特征值、锚杆总长度、入岩情况,并以此为依据选取抗浮锚杆的型号及入岩深度,最后调整锚杆的平面布置。
8、案例介绍
十堰国际中心自锁锚杆(施工图B版) 点击下载
- 上一篇: 后浇清水混凝土面层设计
- 下一篇: 粘结型钢加固技术


