SG胜游·[中国大陆]官方网站

全国服务热线 语言选择 :

027-87253366 027-87253338

设计之窗Design window

武大SG胜游结构股份有限公司

WUDAJUCHENG STRUCTURE CO.,LTD

总部:
武汉市东湖新技术开发区武大园路4号
邮编:
430223
电话:
027-87253366
027-87253338
邮箱:
wdjc@hscsh.com

首页 > 设计之窗 > 加固改造设计加固改造设计

建(构)物顶升纠偏加固(顶升纠偏与平移)

一、适用范围

建(构)筑物顶升、纠偏主要解决由于地基沉降、偶然荷载、工程事故等原因导致建(构)筑物结构产生倾斜的情况,传统的纠偏方式主要有:迫降法、顶升发、综合法等。其中迫降法和综合法受限于场地条件和建筑物体型限制,且存在诸多不确定因素,在实际工程中采用顶升法进行建(构)物顶升纠偏为较常规和适用的方法。

 

二、设计依据

《建筑结构荷载规范》(GB5009-2012)

《建筑结构可靠度设计统一标准》(GBJ50068-2001)

《混凝土结构设计规范》(GB50010-2010

《混凝土结构加固设计规范》(GB 50367-2013

《混凝土结构后锚固技术规程》(JGJ 145-2013

《建筑结构加固工程施工质量验收规范》(GB50550-2010

《既有建筑地基基础加固技术规范》(JGJ123-2012

《锚杆静压桩技术规程》(YBJ22791

《建筑地基基础设计规范》(GB50007-2011

 

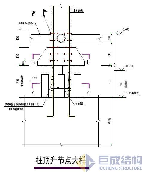
三、加固大样

 

 






         

四、设计范例:

 

  龙马新居纠偏加固施工图 下载